Agencija upisana u registar posrednika pod red. br. 1415

Opis nekretnine

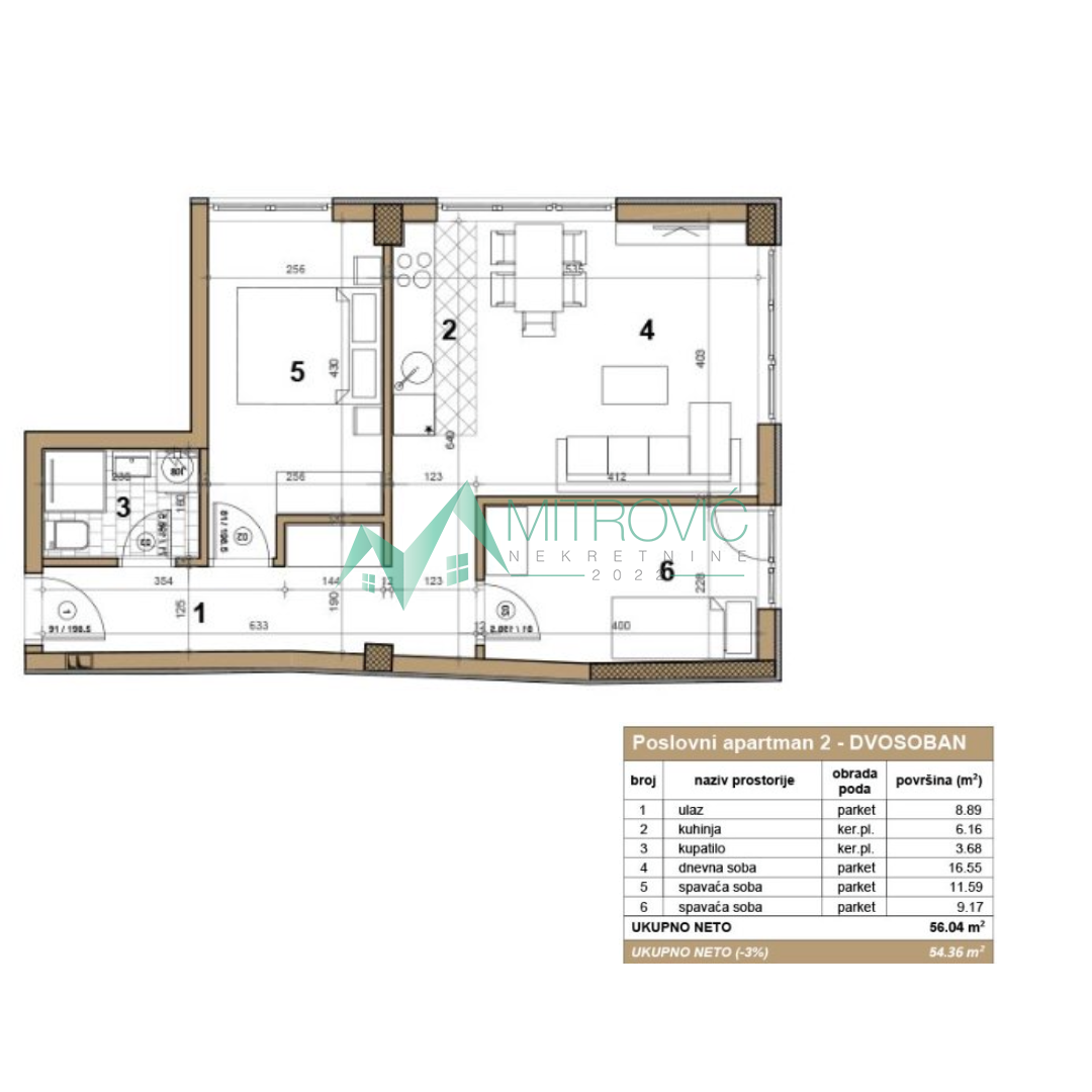
Predstavljamo vam savršenu priliku za kupovinu modernog dvosobnog poslovnog apartmana, koji se nalazi na galeriji elegantne zgrade. Pažljivo odabrani detalji čine ga idealnim za sofisticirane klijente koji traže udobnost i stil. Poslovni apartman se sastoji od dnevnog boravka, sa kuhinjom i trpezarijom, dve spavaće sobe i kupatila. Poslovni apartman će biti opremljen najnovijim trendovima u enterijeru, s fokusom na funkcionalnost i estetiku. Od podova do sanitarija, sve je pažljivo birano kako bi se postigao vrhunski kvalitet. Poslovni apartman se nalazi na atraktivnoj lokaciji, samo nekoliko minuta hoda od centra grada, što omogućava laku dostupnost svih sadržaja. Ovaj poslovni apartman je savršena investicija za one koji cene luksuz, udobnost i praktičnost. Ne propustite priliku da postanete vlasnik ovog izuzetnog stambenog prostora. Poslovni apartman je useljiv u junu 2026. godine. U cenu je uključena agencijska naknada u visini od 3%. Za više informacija obratite se na broj telefona: 0600800085.

Dodatne informacije

  • Kupatilo: 1
  • Garaža: 1
  • Parking: DA
  • Internet: DA
  • Orjentacija:
  • God gradnje:

Slične nekretnine